サイトマップ
|
会社情報
|
個人情報の取扱について
|
お問合せ
パレスコートは、『良い物を安く』の方針に基づき、新潟中心部にお求め安い価格にて分譲住宅を供給していきます。
最新広告
販売中物件
分譲実績
設備概要
施工方法
スタッフブログ
Q&A よくあるご質問と回答
アンケート
トップページ
>
分譲実績
> パレスコート女池南2丁目
日常生活の利便性と自然環境。文化施設に囲まれた居住地です。
【所在地】 新潟市女池南2丁目1432番34他
【学校区】 女池小学校・鳥屋野中学校
A号邸外観
A号邸内部
※
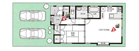
間取図の「
カメラ
」をクリックすると各写真がご覧いただけます。
家族構成にあわせて2F洋室12帖は間仕切り可能です。
インテリアを考えた造作工事。
5号邸間取図
<全 6 邸>
外観・間取
案内図
インターネット特典
ページ先頭へ